by sewellbuilding | Sep 25, 2025
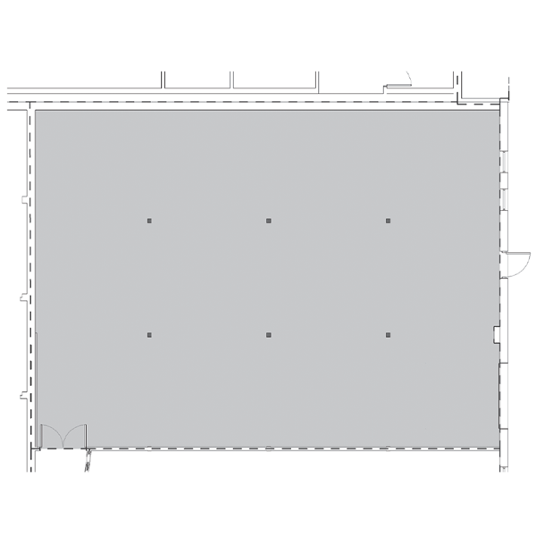
SUITE 101 Rentable Space: 5,636 sq. ft.Usable Space: 4,694 sq. ft.Building level: 1Availability: Immediate CONTACT FOR PRICING DOWNLOAD BROCHURE INDUSTRIAL CREATIVE SPACE INDUSTRIAL CREATIVE SPACE Your next move starts at 2288 University Avenue. For more information...
by sewellbuilding | Sep 25, 2025
SUITE 102 Rentable Space: 1,776 sq. ft.Usable Space: 1,479 sq. ft.Building level: 1Availability: Immediate CONTACT FOR PRICING DOWNLOAD BROCHURE INDUSTRIAL CREATIVE SPACE INDUSTRIAL CREATIVE SPACE Your next move starts at 2288 University Avenue. For more information...
by sewellbuilding | Sep 25, 2025
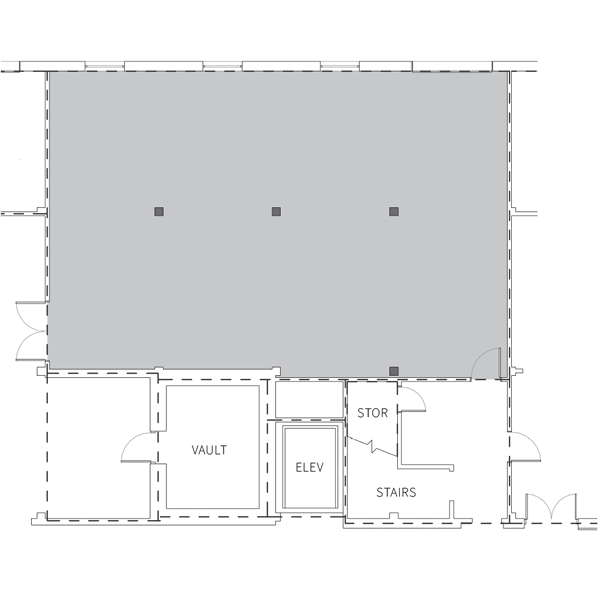
SUITE 109 Rentable Space: 2,942 sq. ft.Usable Space: 2,450 sq. ft.Building level: 1Availability: Immediate CONTACT FOR PRICING DOWNLOAD BROCHURE INDUSTRIAL CREATIVE SPACE INDUSTRIAL CREATIVE SPACE Your next move starts at 2288 University Avenue. For more information...
by sewellbuilding | Sep 25, 2025
SUITE 120 Rentable Space: 2,074 sq. ft.Usable Space: 1,727 sq. ft.Building level: 1Availability: Immediate CONTACT FOR PRICING DOWNLOAD BROCHURE INDUSTRIAL CREATIVE SPACE INDUSTRIAL CREATIVE SPACE Your next move starts at 2288 University Avenue. For more information...