The Sewell Building
  • Property Info
  • Suite Availibility
  • Tenants
  • Gallery
  • Murals
  • Contact
Select Page

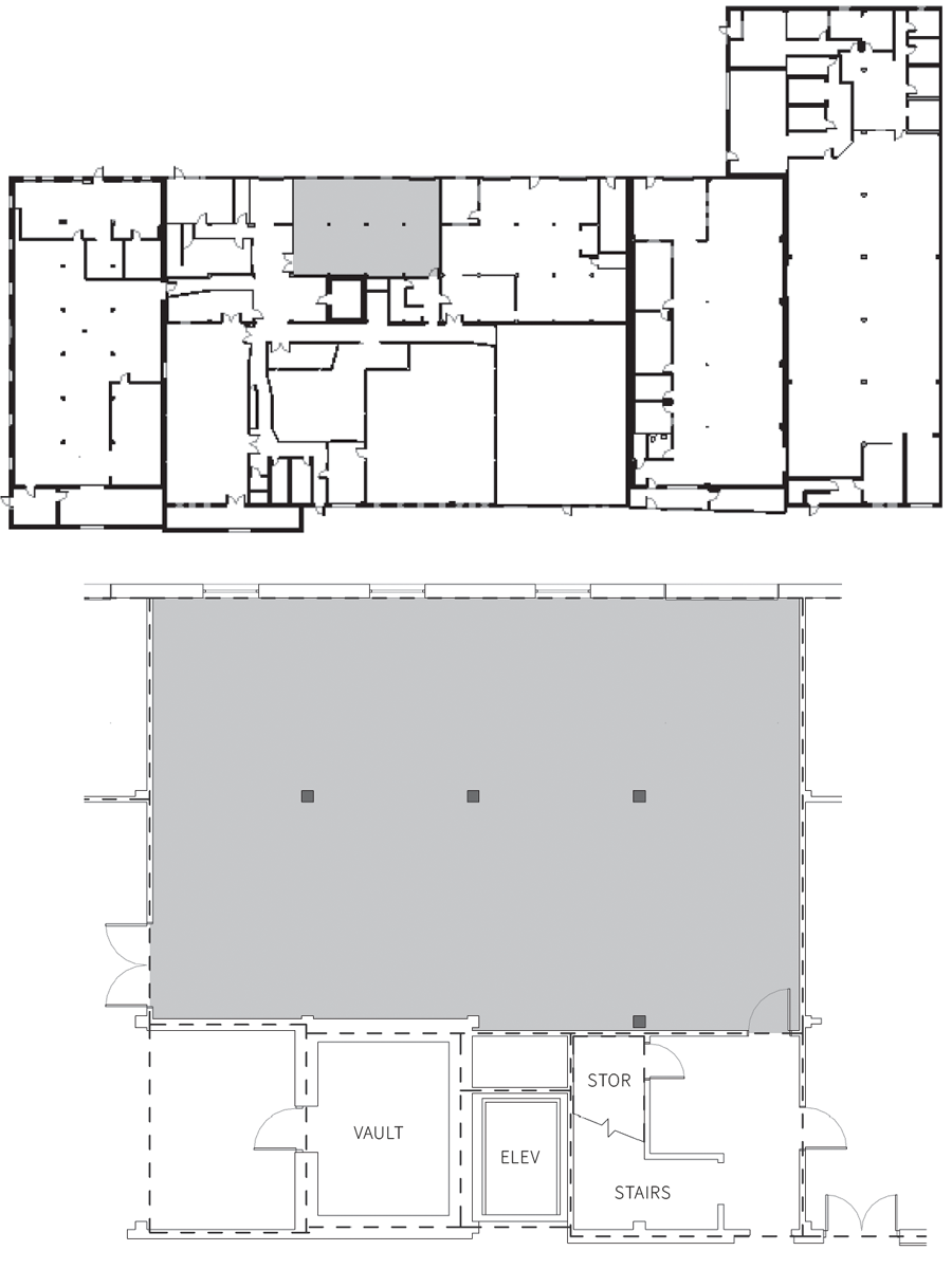
Suite 102

Rentable Space: 1,776 sq. ft.
Usable Space: 1,479 sq. ft.
Building level: 1
Availability: Immediate

CONTACT FOR PRICING
DOWNLOAD FLOORPLAN

INDUSTRIAL CREATIVE SPACE

INDUSTRIAL CREATIVE SPACE

Your next move starts at 2288 University Avenue. For more information on availability, leasing, zoning & more, contact:

MATT ANGLESON
612-978-5180
mattangleson@suntide.com

COLIN OLSON
763-772-5841
colinolson@suntide.com

CONTACT SEWELL
  • Follow
  • Follow
  • Follow

2288 University Avenue South / St. Paul MN 55114

© PAK Properties. All Rights Reserved. | Powered by SitesForBuilders.com