The Sewell Building
  • Property Info
  • Suite Availibility
  • Tenants
  • Gallery
  • Murals
  • Contact
Select Page

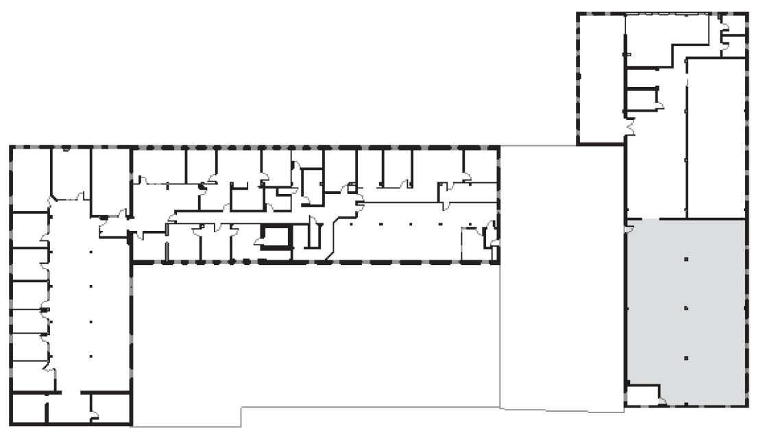
Suite 250

Rentable Space: 4,198 sq. ft.
Usable Space: 3,496 sq. ft.
Building level: 2
Availability: Immediate

CONTACT FOR PRICING
DOWNLOAD FLOORPLAN

© PAK Properties. All Rights Reserved. | Powered by SitesForBuilders.com